ул.Симферопольская
дом 5, офис 9
Корзина
Корзина пуста
Как сделать заземление в частном доме. Как сделать заземление в доме правильно
Как сделать заземление в частном доме
Современный жилой дом сегодня должен отвечать всем требованиям безопасности, в том числе и тем, которых требуют линии электрической сети с наличием заземляющего провода. В многоквартирных жилых домах задачу по наличию в электрической сети заземляющего провода еще при строительстве решили за вас, а если сделать это забыли, то организовать заземление самостоятельно у вас вряд ли получиться.
Совсем по-другому все обстоит с организацией заземления у собственников частных жилых домов. В них смонтировать линии электрической сети с заземлением можно, даже если последнего до этого момента в доме не было. Однако в большинстве же случаев подобная задача (о необходимости устройства заземления) стоит перед теми, кто только строит свой дом.

Что представляет собой заземление?
Заземление в частном доме представляет собой устройство специального заземляющего контура за пределами дома. Для создания данного контура вам потребуется:
- не менее трех уголков размером 50×50×5 мм и длиной 3 метра;
- стальная полоса шириной 40×4 мм;
- круглая стальная проволока диаметром 8 – 10 мм.

Как правильно сделать заземление в частном доме — пошаговая инструкция.
Шаг 1: траншея под контур заземления.
В первую очередь, необходимо прокопать траншею глубиной 0.5 – 0.8 метра и шириной порядка 0.8 метра. Ширина траншеи может варьироваться и зависит лишь от удобства последующего монтажа.
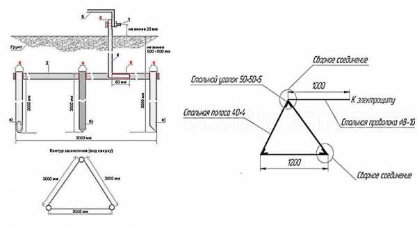
Примечание: в плане дома траншея, как правило, обозначается в виде равностороннего треугольника с длинной грани порядка 1.5 – 3 метров.

Сразу оговорюсь: организация контура в виде треугольника не обязательна, его можно делать в ряд либо и вовсе по окружности. Главное — это соблюдать расстояние между забитыми уголками, которое должно составлять порядка 1.5 – 3 метров.

Шаг 2: монтаж контура заземления.
В углах выкопанной треугольной траншеи необходимо с помощью кувалды забить в землю стальные уголки, но не на всю дину, а так, чтобы над поверхностью дна траншеи эти уголки выступали на 10 – 20 см. Это необходимо для того, чтобы объединить каждый забитый в землю уголок стальной лентой в единый контур.
Для того чтобы уголки лучше забивались, их можно предварительно заточить. Как вариант, можете с помощь садового бура предварительно сделать лунки глубиной порядка 1.5 метров, это также значительно облегчит процесс вбивания уголков особенно на твердых глинистых грунтах.
Забитые уголки, как уже отмечалось выше, необходимо объединить стальной лентой, которая должна быть приварена к уголку с помощью сварки (крепить ленту и уголок на болтовое соединение недопустимо и чревато в последующем плохим контактом в результате окисления). Кстати, не забудьте защитить сварные места от коррозии, окрасив их либо смазав специальной смазкой.
После, к готовому контуру приваривается еще стальная проволока. С ее помощью мы и заводим заземление в распределительный электрощит, выносной либо находящийся в доме.

Шаг 3: тестирование контура заземления.
После этого необходимо измерить сопротивление заземляющего контура. Оно не должно превышать 30 Ом. Самостоятельно произвести такие измерения без наличия специального оборудования вряд ли удастся, обычный китайский мультиметр вам здесь не поможет. Для проведения необходимых измерений нужно будет вызвать специалистов, которые имеют соответствующее сертифицированное оборудование.
Если сопротивление заземляющего контура будет больше необходимого максимально допустимого значения, то придется еще дополнительно забивать уголки до того момента, пока оно не будет находиться в допустимом интервале значений.
Шаг 4: подключения заземления к электрощиту.
Кстати, в распределительном щите заземление необходимо соединить самим корпусом щита, а также подключить его к заземляющей рейке. Чаще всего, если вы покупаете готовый распределительный электрощит с уже смонтированным внутри него оборудованием, то заземление будет достаточно подключить к специальному выходу на корпусе, который, чаще всего, выглядит как стандартный винт с гайкой.

Если внутри распределительного электрощита вы планируете сами монтировать оборудование, а электриком не являетесь, постарайтесь перед устройством электрической сети вашего частного жилого дома сперва изучить данный вопрос и нюансы, связанные с ним. Я же на этом сейчас останавливаться не буду, поскольку это тема для отдельных статей.
Ну, а вопрос, как самому сделать заземление в частном доме, на этом можно считать закрытым.
Видео.
Рекомендую прочитать:
podmasterij.ru
Как сделать в частном доме заземление и правильно его подключить
Если вы купили загородный дом, в котором не предусмотрен заземляющий контур, его необходимо установить своими руками. Делать заземление в частном доме предписывают не только требования ПТБЭ, но и жизненная практика. При наличии правильно спроектированного и
выполненного защитного заземления, риск поражения электротоком при возникновении различных аварийных ситуаций сводится к минимуму.
Важность заземления
Стоит отметить, что существует два типа заземления:
- Рабочее – применяется в промышленности для правильного функционирования сложного электромеханического оборудования. В случае неполадок на линии выполняет также функцию защитного заземления.
- Для жилых и других помещений обязательно наличие защитного заземления, которое предназначено для предотвращения поражения током людей в случае неисправности в электропроводке.
Для надежной защиты человека все бытовые электроприборы, имеющие специальную вилку с дополнительным боковым контактом, к заземлению нужно подключать при помощи евророзетки. Практика эксплуатации электрооборудования показывает, что некоторые бытовые приборы лучше заземлять непосредственно на корпус (тем более, если это предусмотрено конструкцией). К этой категории относится следующее оборудование:
- Электрический водонагреватель и стиральная машина. Эти приборы имеют большую мощность, эксплуатируются во влажной атмосфере, поэтому требуют особого подхода.
- Микроволновые печи, варочные панели и духовые шкафы сильно нагреваются, что может вызвать оплавление изоляции. Такие электроприборы будет правильно заземлить к самому корпусу.
- Заземляющий провод также нужно «прицепить» непосредственно на корпус компьютера. ИБП дает большие токи утечки, что вызывает сильные помехи, от которых не только гудят динамики, но и падает производительность системы. Не стоит забывать и о дополнительной защите человека от статических разрядов, которую обеспечивает подключенный контур заземления.
Устройство контура заземления
Теперь рассмотрим, как сделать заземление в доме. Оптимальным вариантом считается схема, когда контур замкнут. Такое устройство более надежно: при повреждении одной из частей, целостность самого контура не нарушается, и заземление продолжает правильно функционировать.
Обратите внимание! К замкнутым контурам относятся следующие формы: треугольник, квадрат, прямоугольник, овал или круг. Одной из этих форм нужно отдавать предпочтение при оборудовании заземления своими руками.
Подготавливаем материал и инструменты
Чтобы правильно собрать контур заземления своими руками, потребуются следующие материалы:
- Лучше всего использовать стальные уголки 5×5 см: их легче всего забивать в землю. Также используется толстостенная труба диаметром 32 мм. Длина должна составлять 2 метра.
- Для изготовления шины нужно подготовить металлическую полосу. Ее ширина должна быть не менее 40 мм, а толщина – 5 мм. Что касается длины и количества полос, то все зависит от расстояния от дома, на котором обустраивается контур.
- Еще понадобится медный кабель сечением 6 мм2 и болт из нержавеющей стали с шайбами и гайкой.
Из инструментов под рукой должны быть:
- Чтобы копать землю, понадобятся лопата и перфоратор.
- Дисковая пила для резки металла.
- Кувалда: лучше взять самую тяжелую, которую найдете.
- Два гаечных ключа, чтобы затянуть болт.
Важно! Обязательно наличие сварочного аппарата для создания надежного контакта. Если варить вы не умеете, можно попросить помочь знакомого или соседа.
Теперь остается правильно собрать заземляющий контур.
Пошаговая инструкция
Прежде чем начинать устройство самого контура, нужно выбрать место для его установки. Этот этап очень важен: от правильно выбранного места зависит эффективность и безопасность заземления. Контур желательно располагать на расстоянии одного метра от дома, но при этом в таком месте, где никто не должен находиться. Дело в том, что при срабатывании защиты, например, при пробое на корпус электроприбора, разряд по шине уйдет в землю. При этом могут пострадать люди или животные, которые будут находиться возле контура. Поэтому, обустроив заземляющий контур, его нужно дополнительно оградить небольшим заборчиком.
Сама схема сборки заземления производится в следующем порядке:
- Земляные работы. На этом этапе нужно прокопать траншею глубиной 50 см по направлению от стены дома к выбранному месту установки контура. Также нужно выкопать траншею такой же глубины в форме треугольника. При этом каждая сторона замкнутого треугольника должна составлять не менее 120 см.
- На следующем шаге в землю вбиваются металлические уголки. Это делается на вершинах прокопанного треугольника. Чтобы облегчить вбивание, при помощи дисковой пилы нужно правильно обрезать металл под острым углом, образовав своеобразное копье. Как уже отмечалось, уголки должны быть длиной 2 метра. Вбивать их нужно полностью, оставив лишь около 5 см над поверхностью грунта.
- К выступающей части металлических уголков приваривается приготовленная полоса. Таким образом, три штыря соединяются в общий заземляющий контур. Для продления срока эксплуатации, сварные швы обрабатываются растопленным битумом или толстым слоем краски.
- Затем в траншею, прокопанную в сторону стены дома, укладывается еще одна металлическая полоса, при этом она приваривается к ближайшему вбитому в землю уголку. Возле фундамента полоса загибается на 90° и выводится выше уровня грунта на 50 см.
- К концу подведенной к дому шине при помощи болта прикручивается заготовленный медный кабель, который затем прокладывается к центральному электрощиту.
После этого все траншеи засыпаются извлеченным грунтом и трамбуются: заземление частного дома готово!
Совет! Если на вашем участке песчаная почва с низким уровнем грунтовых вод, то для улучшения токопроводящих характеристик грунта, перед обратной засыпкой траншей, вбитые штыри будет правильно залить соляным раствором. Для этого нужно растворить 1 кг соли в ведре воды и залить каждый штырь.
Как не стоит делать
Нормативные документы, регламентирующие оборудование заземления, в том числе и в частном доме, имеют несколько предостережений. Их обязательно нужно брать в расчет и учитывать, самому производя устройство заземления:
- Запрещено подключать заземляющий контур на любые трубопроводы.
- Нельзя выводить провод заземления наружу для подключения непосредственно к металлической шине.
- Также не рекомендуется производить подключение к неподготовленным контактным местам: покрытым краской, ржавчиной или пленкой окислов.
- Неправильно подключать приборы одним проводом или на один контакт на шине. В таком случае, поломка на одном электроприборе выведет из строя остальные, подключенные последовательно.
Совет! Каждый бытовой электроприбор должен подключаться к заземлению отдельным проводом. При этом к заземляющей шине провода подключаются в разных местах, на отдельную контактную площадку.
Проверка контура заземления
После того как схема заземления собрана, нужно проверить контур на работоспособность. Стоит отметить, что такая проверка во время эксплуатации должна производиться два раза в год. Для этого требуется несложный прибор – мегомметр или современный электронный мультиметр. Разберемся, как правильно проверить собранный своими руками контур заземления:
- Проверка соединений. После визуального осмотра швов, нужно проверить значение сопротивления для каждого металлического соединения. Нормой считаются показания ниже 4 Ом.
- Также нужно проверить грунт: это производится в сухую погоду. Для этого на расстоянии около 13 метров в землю вбиваются два электрода (на глубину до 100 см, расстояние между ними – до 150 см). После этого подсоединяют измерительный прибор: отрицательный щуп – к контуру заземления, а положительный – к параллельно соединенным вбитым электродам. Результат измерений также не должен превышать 4 Ом.
Если все измерения в пределах нормы, то контур заземления выполнен правильно. Если показания выше, то нужно искать причину: возможно, швы выполнены некачественно или неверно выбрана схема заземления.
Загрузка...
2064
Понравилась статья? Поделитесь:Советуем к прочтению
voltland.ru
Заземление в частном доме своими руками: как сделать правильно?
Необходимо ли заземление в частном доме? Можно ли его устроить своими силами?
Как сделать заземление электрических приборов правильно? Можно ли справиться с этим самому?
Какие факторы необходимо учитывать при устройстве заземления?
Какие требования существуют для заземления электросети в 220в? Для чего нужен токоотвод?
Нужен ли громоотвод в частном доме? Все это и многое другое можно узнать, прочтя эту статью.
Необходимость заземления
Зачем и для чего нужно заземление, понять можно, вспомнив школьный курс физики. Современные дома просто напичканы электрической техникой.
Если еще полвека назад из электрических приборов в доме были только лампочки и телевизор, то сейчас от электричества работает практически все.
Это многократно повышает риск удара электрическим током. В виду многих факторов чувствительность разных людей к электрическому току различается.
Кто-то быстро оправится после удара, другие, более чувствительные люди, могут умереть от электрошока.
Правильное устройство заземления в частном доме значительно снизит риск таких последствий. Если электросеть заземлена, то человек получит только кратковременный удар током.
Длительность удара от заземленной электрической сети в 220в составляет менее одной секунды, что существенно снижает степень вреда здоровью.
Схемы:
В новостройках монтаж заземления производится сразу при разведении электропроводки. Владельцам частных домов и квартир в старых домах придется заниматься устройством заземления самостоятельно или нанимать квалифицированных электриков.
В целях экономии денежных средств, обладая минимальными знаниями физики, можно заняться устройством заземления дома самостоятельно. Нельзя сказать, что это занятие совсем простое, но и не слишком сложное.
Если соблюдать все требования, то заземление будет установлено правильно. По технологии сопротивление растекания токов в электрической сети не должно превышать 4 Ом.
Требования не содержат информации о том, кто имеет право проводить монтаж заземления. Получается, что технически можно заняться монтажом самостоятельно.
Однако тут есть один интересный момент. Если монтаж заземления в доме проводила управляющая компания, то хозяину выдается копия проекта со штампом о приеме работ.
Кроме того, возможность компенсации в случае некачественного заземления прописана в договоре с управляющей компанией.
То есть если вдруг произойдет авария, то у хозяина дома будет возможность требовать компенсацию ущерба.
Если заземление частного дома проведено своими руками, то, само собой, бумаг этих у хозяина не будет. Конечно, можно попробовать обратиться в суд за компенсацией. Но гарантировать, что дело будет выиграно, невозможно.
По этой причине перед началом работ нужно взвесить все за и против. Если вы сомневаетесь в собственных способностях, то, может быть, лучшим вариантом будет обратиться за помощью к профессиональным электрикам?
Если же вы уверены в том, что справитесь со всеми работами правильно, то читайте статью дальше.
Какое бывает заземление?
Чтобы правильно сделать заземление в частном доме своими руками, нужно понимать, какое оно бывает.
Бытовое заземление бывает двух типов:
- защитное;
- рабочее.
Бытовое защитное заземление обеспечивает работоспособность электрического оборудования, включенного в сеть. Оно же обуславливает и защиту человека от удара током.
Грозозаземление, которое в быту чаще называют громоотводом или молниеотводом, тоже относится к типу защитного.
Рабочее заземление чаще используется на производствах. Помимо защиты приборов и людей, на него возлагается задача обеспечивать нормальную работу приборов.
Так было еще десять лет назад. Сегодня некоторые бытовые электроприборы, обладающие собственной энергосетью, требуют подключения к сети, имеющей постоянное рабочее заземление.
Заземления через обычную розетку может оказаться недостаточно для следующих приборов:
- стиральная машина;
- микроволновка;
- электродуховка;
- электрический щиток.
Для этих и других особенно мощных приборов необходимо устроить прямое заземление корпуса. Его можно сделать, соединив медным проводом любой болт на задней стенке прибора с землей.
Некоторые приборы оснащены даже специальной клеммой для этого. Это обеспечит снятие фонового и статического электричества с корпуса прибора.
Ни в коем случае нельзя использовать при прямом заземлении водопроводные, газовые или отопительные трубы.
Провод должен выводиться именно на проводник, идущий в землю. В отличие от старых квартир в многоэтажках, в частном доме эта мера легко выполнима.
Заземляющий контур включает заземлитель и медные шины, ведущие к приборам. Заземлитель представляет собой металлический штырь, уголок или кусок арматуры, вертикально вбитый в землю.
Видео:
Глубина зависит от промерзания грунта в зимний период, обычно используется проводник длиной от двух метров. Верхняя часть заземлителя соединяется с приборами посредством изолированной медной шины.
Во избежание замыкания приборов желательно, чтобы каждый прибор имел свою отдельную шину. Традиционно в качестве шины применяется медный провод в желтой оболочке с зеленой полосой.
Это является защитой от перепутывания проводов и возникновения короткого замыкания.
Провод соединяется с контактной клеммой болтом. Если наличие специальной клеммы не предусмотрено производителем, то в качестве нее можно использовать металлическую контактную площадку с отверстиями под болты. Клемма тщательно зачищается и смазывается средством для защиты от коррозии и окисления.
Окрашивать контакты нельзя, однако можно заизолировать при помощи изоляционной коробки или изолентой. Перед изоляцией необходимо проверить сопротивление контура.
На каждом отдельно взятом приборе, включенном в сеть 220в, сопротивление внешнего контура не должно превышать 0,1 Ом.
Для двух или трех электрических приборов можно использовать один заземлитель, но для заземления электросети и громоотвода потребуются отдельные.
Расстояние между вкапываемыми заземлителями должно составлять 1-2 метра. Лучше всего придерживаться этих правил, так как в этом случае в земле создастся потенциальное поле, что значительно увеличит контактную площадь.
Как избежать непоправимых ошибок?
Как делается заземление на даче? Как сделать заземление в частном доме правильно? Чтобы сам контур заземления не стал причиной поражения электрическим током, необходимо соблюдать меры предосторожности.
Недопустимо, чтобы частью контура были:
- газовые или водопроводные трубы;
- батареи отопления;
- окислившиеся провода или клеммы.
Нельзя производить монтаж заземляющих проводов последовательным соединением. Подключения нескольких шин к общему заземлителю должны происходить только параллельно. Соблюдение этих простых мер позволит избежать проблем в дальнейшем.
Все заземлители располагают в грунте в одну линию или виде треугольника на расстоянии не менее 1,5 м от фундамента.
Чтобы проверить работоспособность заземления, замеряют его сопротивление. Для этого можно использовать электронный измеритель или мегомметр.
Применение бытового тестера для измерения сопротивления растекания не подойдет, так как показания по грунту при сети в 220в будут неверными. При измерении сопротивления строго запрещено использовать сетевое напряжение.
Видео:
Почти до конца прошлого столетия для заземления многоквартирных домов применялась схема с глухозаземленной нейтралью.
Попросту говоря, контур заземления электрической внутридомовой сети соединялся с внешним контуром.
При этом способе металла для разведения контура требуется почти в два раза меньше. Однако в настоящее время из-за обилия высокомощных электрических приборов в каждом доме такой способ не является эффективным.
Такая схема является непригодной для рабочего заземления, так как в нейтральном проводе создается собственное электрическое напряжение.
Если произойдет перепад напряжения в сети или другая авария, то все подключенные к сети приборы могут выйти из строя.
При такой схеме заземления во внутридомовой сети может создаться напряжение, значительно превышающее отметку в 220в, что в свою очередь может привести к возгоранию электроприбора.
На корпусах подключенных приборов тоже может создаться напряжение в 220в, что может стать причиной травмы или короткого замыкания.
По этой причине на заземлении лучше не экономить, а осуществить монтаж сетевого контура отдельно от прямого заземления корпусов приборов и грозозаземления.
Устройство защитного заземления
Монтаж контура защитного заземления проводится одновременно с электрической проводкой. Схема подведения должна включать все электроприборы за исключением лампочек освещения.
Третий желтый провод необходимо подвести ко всем выключателям и розеткам дома.
Во избежание ошибок в будущем желательно проводить заземляющий контур именно проводом с соответствующей разметкой. Не стоит использовать желтый провод для других целей.
Видео:
Если разводка в доме будет проведена правильно, с использованием нужных по цвету проводов, то любой человек, производящий ремонт или замену электрической сети, будет видеть, где находится плюсовой кабель, минусовой и земля.
Поэтому не стоит пренебрежительно относиться к разметке проводов. Халатное отношение к общепринятым нормам может обойтись поломкой дорогостоящей техники, и даже стоить кому-то жизни.
Рекомендуется использовать и изоленту соответствующих цветов.
Кроме заземления, на входе сразу после счетчика рекомендуется установить щиток с автоматическими дифференциальными реле.
Особенно актуален этот шаг, если в доме бывают перепады и колебания напряжения электроэнергии. Реле будет отключать сеть в случае любых перепадов во внутридомовой электросети.
Приборы с высокой мощностью желательно снабдить отдельными автоматическими выключателями.
Конечно, автоматическими выключателями полностью заменить защитное заземление не удастся, но от пробивания корпус прибора они защищают вполне успешно.
Если отгорит минусовой провод, то устройства автоматического отключения сгорят в первую очередь. Конечно, обгорания проводов случаются не так часто, но во избежание аварии лучше устроить нормальное заземление сети.
Монтаж электропроводки в доме необходимо осуществлять при помощи медных проводов. Важно следить и за качественным соединением контактов.
Для крепления заземляющих проводов рекомендуется использовать предназначенные для этой цели клеммы и болты. Скручивания проводов необходимо избегать.
Все эти меры обеспечат правильное подключение сети.
Это поможет избежать таких проблем с проводкой в будущем, как:
- возникновение короткого замыкания проводов и приборов;
- отгорания проводов;
- пробивания энергии на корпус приборов;
- выход из строя электротехники.
Кроме того, эти меры существенно снижают риск возникновения пожара и продлевают срок эксплуатации электрических проводов.
Тем не менее, проводку, у которой вышел срок эксплуатации, а тем более характеристики не соответствуют современным требованиям, нужно своевременно менять.
Молниеотвод и внешнее заземление
Зачем нужно устраивать громоотвод? Как рассчитать его высоту? Какая схема устройства громоотвода самая надежная? Можно ли подвести внешнюю шину заземления к внутридомовой? Как избежать ошибок подключения?
Установка молниеотвода тоже должна быть произведена правильно. Молниеотвод представляет собой металлический штырь, арматуру или трубу.
Устанавливается он на крыше, вблизи конька, строго вертикально. Высота громоотвода должна превышать высоту строения на метр – полтора.
Видео:
Для соединения громоотвода с контуром допустимо использовать стальную проволоку, сечение которой должно превышать 5 мм.
Как сам громоотвод, так и отводящая шина должны быть выполнены из металлической трубы или арматуры с круглым сечением. Применение профиля, уголка, плоских металлических пластин крайне нежелательно.
При использовании плоских деталей функциональность заземления значительно снижается. В виду того, что молниеотвод подвергается влиянию атмосферных явлений, соединять его с контуром допустимо только при помощи сварки.
Молниеотвод обязательно соединяется с горизонтальным контуром из стальной арматуры, проходящей по коньку крыши. После этого приваривается шина, ведущая вниз к заземлителю.
Если на крыше дома есть печная кирпичная труба, то молниеотвод можно закрепить на ней. Если труба выполнена из металла, то этого делать не стоит.
Кроме того, если металлическая труба ведет к котлу, оборудованному электроникой, то она сама требует индивидуального заземления.
Недопустимо использовать в качестве молниеприемника и телевизионную антенну, установленную на крыше. В результате такого подключения телевизор выйдет из строя при первом же попадании молнии.
Молниеприемник должен располагаться выше всех конструкций на кровле здания. Идущий вниз к земле токоотвод должен быть обязательно заизолирован во избежание случайного контакта с ним.
Монтаж внешнего заземления требует большего внимания к своему состоянию, чем внутридомовой контур.
Это связано с тем, что находящиеся под открытым небом металлические конструкции подвергаются постоянному воздействию окружающей среды.
Видео:
В условиях повышенной влажности под воздействием дождя и снега металл может окисляться или ржаветь.
По этой причине состояние молниеприемника и токоотвода нужно проверять не реже двух раз в год. Необходимо не только проводить визуальный осмотр, но и замерять сопротивление системы заземления.
После прочтения этой статьи становится понятно, что представляет собой монтаж системы заземления. Остается решить, по силам ли вам выполнить монтаж и подключение самостоятельно?
Если остались сомнения, то лучше обратиться за помощью в устройстве заземления дома в управляющую компанию.
stoydiz.ru











