ул.Симферопольская
дом 5, офис 9
Корзина
Корзина пуста
Можно ли использовать провод СИП для прокладки в земле? Прокладка сип под землей
Можно ли использовать провод СИП для прокладки в земле? | ЭлектроАС
Дата: 28 июня, 2011 | Рубрика: Вопросы и Ответы, ЭлектромонтажМетки: ГОСТ Р 52373-2005, Прокладка кабеля в земле, ПУЭ, СИП, Электромонтаж
Этот материал подготовлен специалистами компании "ЭлектроАС". Нужен электромонтаж или электроизмерения? Звоните нам!ВиталийПодскажите, пожалуйста, я хочу сделать ввод в дом в земле. Можно ли использовать провод СИП4-4*16 совместно с трубой ПВХ в этом случае, для прокладки в земле.
Ответ:В соответствии с ГОСТ Р 52373-2005, СИП — самонесущий изолированный провод, который предназначен для воздушных линий электропередачи.
Для прокладки линий электроснабжения в земле должны применяться марки бронированных кабелей, а так же, при защите кабеля от механических повреждений, марки кабелей в пластмассовой или резиновой оболочке.
Советуем Вам ознакомиться с циклом статей «Вся правда о электромонтажных работах в деревянном доме в соответствии с ПУЭ и ПТЭЭП. Введение».
ПУЭ-62.1.48Провода и кабели должны применяться лишь в тех областях, которые указаны в стандартах и технических условиях на кабели (провода).
2.3.37Для кабельных линий, прокладываемых в земле или воде, должны применяться преимущественно бронированные кабели. Металлические оболочки этих кабелей должны иметь внешний покров для защиты от химических воздействий. Кабели с другими конструкциями внешних защитных покрытий (небронированные) должны обладать необходимой стойкостью к механическим воздействиях при прокладке во всех видах грунтов, при протяжке в блоках и трубах, а также стойкостью по отношению к тепловым и механическим воздействиям при эксплуатационно-ремонтных работах.
ГОСТ Р 52373-2005 Провода самонесущие изолированные и защищенные для воздушных линий электропередачи.
1. Область применения
Настоящий стандарт распространяется на самонесущие изолированные провода для воздушных линий электропередачи на номинальное напряжение до 0,6/1 кВ включительно и самонесущие защищенные провода для воздушных линий электропередачи на номинальное напряжение 20 кВ (для сетей на напряжение 10, 15 и 20 кВ) и 35 кВ (для сетей на напряжение 35 кВ) номинальной частотой 50 Гц (далее — провода).
3. Термины и определенияВ настоящем стандарте применены термины по ГОСТ 15845 и международному стандарту, а также следующие термины с соответствующими определениями:
3.1. Самонесущий изолированный провод: Многожильный провод для воздушных линий электропередачи, содержащий изолированные жилы и несущий элемент, предназначенный для крепления или подвески провода.
elektroas.ru
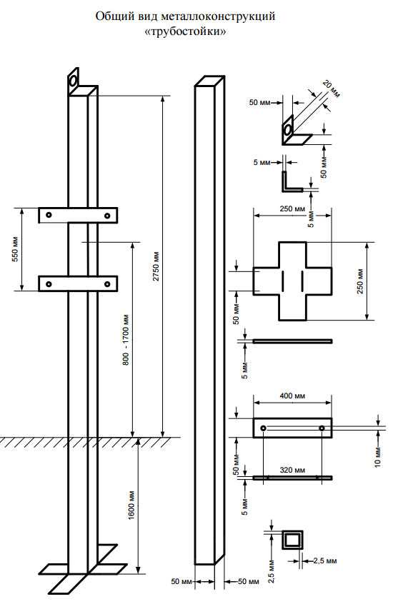
Трубостойка для ввода СИП - 7 этапов работы, чертеж, размеры
Для подключения жилого дома к линии электропередач выполненной изолированными проводами СИП, чаще всего возможны 3 варианта:
- подземный кабельный ввод непосредственно с опоры
- монтаж СИП до фасада дома по воздуху
- монтаж трубостойки под СИП в непосредственной близости от участка и действующей ВЛ
В первых двух случаях приходится размещать шкаф учета со счетчиком и всеми коммутационными аппаратами непосредственно на стене дома.
Редко какая из электросетевых компаний разрешает разместить учет внутри помещения, мотивируя это отсутствием свободного доступа для снятия показаний и проверки схемы соединения. Поэтому, если вы не хотите уродовать свой фасад дома громоздкими шкафами, то трубостойка под СИП со счетчиком лучший вариант.
Можно конечно разместить и непосредственно на опоре электросетевой компании, но это должно быть указано в технических условиях. Да и обслуживание ЛЭП на такой опоре в этом случае затрудняется. Более того, если какой-то электрик при подъеме, случайно когтем или лазом повредит ваш щит, никаких компенсаций вы не добьетесь.
А еще, если столб находится далеко от дома, всегда есть риск повреждения учета посторонними лицами. Металлическая же стойка будет находится на вашем участке, под охраной и никому не будет мешать.
Ну и самый распространенный вариант - когда дом еще не построен, только голый участок, а напряжение для его строительства уже нужно. Вот тут как раз таки, трубостойка это единственный выход для безопасного подключения электричества.
Монтаж трубостойки проходит в несколько этапов:
- сборка и изготовление самой конструкции
- непосредственный монтаж в яму и закрепление в ней
- сборка распределительного шкафа со счетчиком и автоматами
- закрепление шкафа учета на установленную стойку
- подсоединение к линии СИП
- подключение жилого дома от шкафа
Изготовление трубостойки
Строго говоря, трубостойка на сегодняшний день не имеет никакого официального технического определения и сертификации. Поэтому и изготавливают ее кто во что горазд.Лучший материал для сборки металлической стойки это квадратная труба 80*80*3. Она обеспечит достаточную прочность конструкции при натяжении СИП с опоры. Хотя типовыми техническими решениями допускается диаметр не менее 40мм.
Некоторые, основание стойки изготавливают, используя винтовую сваю диаметром 108мм. Закручивают ее в землю кусками труб d-40мм и длиной по 2-3м. После чего во внутрь вставляется труба или квадрат требуемой высоты.
Какой должна быть высота трубостойки? Согласно правил, минимальное расстояние от провода СИП до земли может быть не менее 2,5м. Это если он не пересекает дорогу. При прохождении над дорогой габарит увеличивается до 5м!
Анализ положений правил технологического присоединения (взято с forumhouse.ru) - скачать
Но у некоторых принимают такой учет без проблем и все подключается. Так что каждый случай индивидуален и зависит от местной конторы.
Отталкиваясь от минимальных габаритов над землей (без пересечения с дорогой) и с учетом заглубления в 1,5м, получаем оптимальную высоту трубостойки 4-5 метров. Это может быть как цельный вариант, так и составные части по два с лишним метра.
Лучше выбирайте составное изделие, так как самостоятельно привезти на участок трубу длиной 5м уже проблематично. Придется нанимать спецтранспорт, а это лишние расходы.Метод стыковки отдельных кусков - сварка или болтовое соединение.
При соединении отдельных труб, лучше выбирать профиля разных размеров. Так, чтобы диаметр наружной верхней части, плотно входил в диаметр внутренней нижней.
Вариант посложнее, но более устойчивый и без применения сварочных работ:
- берете три куска квадратных профиля по 3 метра. Размерами минимум 60*60*3.
- 2 профиля закапываете в землю на 1,5м с расстоянием между ними в 60мм. Над землей остается еще 1,5м.
- между двумя торчащими из под земли кусками помещаете третий, тем самым как бы наращивая высоту трубостойки.
- просверливаете в двух местах стыки профилей и стягиваете все это дело болтами или шпильками.
Итоговый результат будет выглядеть примерно таким образом. 
Верхнее отверстие любой трубостойки необходимо заварить. Делается это для того, чтобы во внутрь не поступала и не скапливалась влага, из-за чего металл начнет активно ржаветь.Снаружи вся конструкция окрашивается. Нижнюю часть, которая будет в земле, лучше обработать битумом, или если позволяют финансы найти нужного диаметра и усадить термоусаживаемую трубку. Такое основание никогда не подвергнется коррозии и не сломается с течением времени.
На самой макушке приваривается петля для крепления натяжного зажима СИП.
Если нет сварки, то можно просверлить отверстие d=12-16мм и смонтировать под гайку специальный крюк. 
На высоте 1,7м от земли закрепляются две поперечины из стальной полосы, под крепеж шкафа учета. Расстояния между полосами измеряйте по отверстиям на шкафу.
Можно конечно применить специальные заводские комплекты для металлических шкафов с использованием бандажной ленты и обойтись без сварочных работ. 
Но это если у вас есть в наличии необходимый инструмент (бандажная машинка) и материалы (лента и скрепы). 
Подготовка ямы
На каком расстоянии и где копать яму? Смотрите в первую очередь техусловия! Там может быть вообще прописан запрет на размещение трубостойки в глубине участка, а только на его границе. Такое требование может быть оспорено.
Как правило, допускается размещать стойку не далее 25 метров ВГЛУБЬ от границы вашего участка. При этом расстояние от опоры ВЛ до трубостойки, должно быть не более этих самых 25м. По закону, вы не можете ничего копать и ставить вне своих границ, это не ваша территория.Это в первую очередь касается требования СО разместить учет возле ее опоры, далеко за забором, через дорогу. Сделаете так, и все дальнейшие действия по подключению света, монтажу кабеля или СИП до дома, обслуживанию распредшкафа, его сохранности будут только вашей головной болью.
Поэтому самый главный совет здесь - ничего не копайте, пока не имеете на руках согласованные и устраивающие вас технические условия. Иначе может все придется переделывать.
С помощью лома, лопаты и воды выкапываете вручную ямку. Глубина ямки от 1,5м до 2м, в зависимости от высоты трубы и грунта. Для того, чтобы яма получилась ровной и аккуратной, первые 0,5-0,7м можно пройти лопатой, а оставшееся расстояние простым садовым буром.
При наличии переходников и не каменистого грунта, можно ускорить это дело перфоратором.
Ну а если есть мотобур, то вся глубина проходится в легкую с помощью него.
Когда неудобно или тяжело пройти последние десятки сантиметров, можно стойку просто вбить в землю. Навариваете на нее сбоку дополнительные куски уголков и ударами кувалды вгоняете оставшееся расстояние. После чего, не нужный более уголок срезается, а место сварки аккуратно закрашивается.
Установка стойки
В подготовленную яму вставляется ранее изготовленная стойка. Если засыпаете землей, то не забывайте каждые 15-20см трамбовать. Можно использовать щебень и забетонировать все основание. Тогда никакие наклоны вам будут не страшны, да и коррозия не будет оказывать такого сильного влияния.
Бетону дайте время 1-2 дня чтобы окончательно застыть, только после этого можно вешать шкаф.
Конечно бетонирование значительно увеличивает время всего монтажа. Без него, простым утрамбовыванием всю работу можно сделать за 2-3 часа. Кроме того, без бетона значительно улучшается заземление самой стойки, за счет лучшего контакта с землей (если вы конечно полностью не изолировали термотрубкой или битумом низ). Поэтому здесь нужно будет делать выбор - надежная устойчивость и долговечность или лучшее заземление.
Сборка шкафа осуществляется отдельно и зависит опять же от выданных технических условий и количества электрооборудования у вас дома. Чаще всего там размещают вводной и отходящий автомат или УЗО, плюс электросчетчик. Вся остальная сборка автоматики уже происходит внутри щитовой дома.
Вообще здесь лучше придерживаться минимализма. Потому что шкаф находится на улице и подвергается постоянным колебаниям температуры и влажности. Поэтому монтировать туда всякие дорогостоящие релюшки не желательно.
Сам шкаф учета можно закрепить 4 способами:
- на саморезы через заднюю стенку. Делать этого не стоит, так как нарушается герметичность шкафа и его требования по IP54.
- на болты с гайками через боковые ушки
- при помощи бандажной ленты
- или попросту приварить к металлическим уголкам, но в таком случае это уже будет не съемный вариант
Места соединения шкафа и трубостойки необходимо зачистить от краски для обеспечения полного контакта и заземления всей конструкции.
Как размещать шкаф наружу или во внутрь участка?Для удобства снятия показаний проверяющими, если стойка не огорожена забором, размещайте так, чтобы дверца смотрела наружу. Для удобства вашего обслуживания - дверцой во внутрь. Но тогда на участок каждый раз придется запускать контролеров.
Сопротивление контура заземления здесь должно быть не более 10 Ом. Сможете ли вы его обеспечить одним 3 метровым уголком или штырем, вбитым рядом с трубостойкой, зависит от состава грунта. 
Чтобы обойтись в качестве заземления самой металлической стойкой, глубина ее заглубления должна быть не менее 3 метров.
Опять же проверяющие из СО при подключении, могут замерить заземление и требовать соблюдения его параметров. А могут и удовлетвориться простым его наличием. Все индивидуально. Но для собственной безопасности сделайте его по правилам.
Подключение к линии СИП
Подключение к линии электропередач выполненной проводом СИП можно сделать с помощью кабеля подвешенного на тросике, а лучше всего использовать другой СИП 4*16 или СИП 2*16.Для этого вам понадобится:
- дополнительный крюк на опору
Кронштейны EnstoКронштейны IEKКронштейны КВТКронштейны SicamКронштейны Niled
- 2 анкерных зажима
Анкер EnstoАнкер IEKАнкер КВТАнкер SicamАнкер Niled
- 4 или 2 прокалывающих зажима
Подробнее о методах подключения можно ознакомиться в статье "Как соединить провода СИП между собой и с медным кабелем". 
Как лучше сделать опуск СИП по трубостойке до шкафа учета? Не нужно вырезать отверстие сбоку трубы, чтобы запустить туда провод.
Прорезая такие отверстия входа (сверху) и выхода (снизу), вы тем самым ослабляете всю конструкцию, а также открываете доступ влаги во внутрь. Если грубо взять скорость коррозии в 0,1мм в год, плюс учесть толщину стенок в 3мм, то лет через десять ваша стойка просто упадет.
Кроме того, такой способ может не понравиться сетевикам, так как ввод будет скрытым, и внутри теоретически можно сделать незаметное подключение до счетчика.
Скорее всего учет не примут и заставят переделывать.
Поэтому СИП должен спускаться снаружи, защищенный трубой, либо атмосферостойкой гофрой ПНД (черная).
Для СИП 4*16 используйте гофру диаметром минимум 32мм. Будет удобнее заводить. Использовать ПВХ материал нельзя. В мороз все это полопается и прослужит на улице не более одного двух сезонов.
Еще один из вариантов - использование специальных дистанционных зажимов или бандажей. Вот их марки и характеристики с размерами под СИП:
EnstoSicamNiled
Дистанционный бандаж Ensto SO75.100 и SO79
Дистанционный бандаж Sicam Bic
Дистанционный бандаж Niled Bic
СИП такой материал, который позволяет не прятать его в гофру. Однако по требованиям техники безопасности, любой провод или кабель (даже бронированный), должен быть защищен на уровне до 2м от земли. А шкаф у вас висит на расстоянии максимум 1,7м. Поэтому хотите вы или нет, а прятать его в трубы или гофру все равно придется.
Для крепления труб не желательно использовать простые сантехнические хомуты. Они не атмосферостойкие и все резники со временем рассохнуться и выпадут.
Гофру притягивайте к стойке опять же специальными хомутами для СИП. Иначе от мороза и солнца ПВХ материал хомутов полопается и весь ваш ввод будет болтаться как не понятно что. Для того, чтобы вода не попала внутрь шкафа, СИП опускают и заводят только снизу.
Окончательный ввод от трубостойки до дома лучше выполнить подземным способом, при помощи бронированного кабеля. Хотя каким образом вы будете заводить электричество после точки учета уже ваше личное дело. В технических условиях этого не прописывают.
Только помните, что провод СИП закапывать в землю нельзя!
Если подземный вариант не доступен (есть пересечение с газовой трубой, асфальт), то СИП опять нужно поднимать вверх и тянуть на фасад дома.Когда данный шкаф у вас был в качестве времянки на момент строительства дома, а потом все таки пришлось выходить кабелем на одну из стен, оптимально в конце строительства будет полностью убрать трубостойку и сделать полноценный ввод в дом напрямую - от столба до фасада.
Статьи по теме
domikelectrica.ru
Прокладка кабеля в траншее - марки кабеля, обзор бронированных марок, особенности прокладки кабеля в земле
Среди существующих способов монтажа силовых линий прокладка кабеля в траншее считается одним из наиболее экономически оправданных и надежных методов. В данной статье мы проанализируем основные типы и марки кабелей, которые пригодны для укладки под землей. Кабель для прокладки в траншеях
Проведение земельных работ и монтаж кабеля требуют четкого соблюдения норм, установленных правилами ПУЭ и ПТЭЭП.
Критерии, по которым осуществляется подбор кабеля для прокладки в траншеях следующие:
- тип грунтов. Данный критерий важен для оценки степени промерзаемости и естественных деформаций различных участков кабельной трассы;
- коррозионная активность грунта, которая характеризуется показателям влажности и кислотности;
- условия эксплуатации, в том числе близость фундаментов и зеленых насаждений, авто- и железных дорог, нефте/газо/теплопроводов, ЛЭП и электрифицированного транспорта.
Подземным способом может быть проложена кабельная продукция как защищенная броней, так и не имеющая специальных защитных покровов. Классификация типов кабелей для прокладки в земле (траншеях) также производится по материалу изоляции, которая может быть изготовлена:

Минимальная глубина подземного монтажа кабельной продукции регламентирована нормативной документацией и зависит от рабочих параметров силовой линии и типа грунта. Например, глубина траншеи для кабелей до 20 кВ должна составлять не меньше 0.7-0.8 м, до 35 кВ – 1 м.
Бронированные марки обычно не нуждаются в дополнительной защите при подземной прокладке. При монтаже силовых линий из небронированных марок, а также при необходимости пересечения бронированными кабелями авто- или железных дорог, возможно использование нескольких видов защитных конструкций:
- бетонные плиты, которые накладываются поверху слоя из мягкого грунта или песка не менее 0.1 м. Для защиты силовых линий от 35 кВ используются плиты толщиной не меньше 50 мм;
- кирпичная кладка, которая монтируется аналогично плитам из бетона;
- асбестоцементные или бетонные, стальные, керамические или пластмассовые трубы (гофрошланги) из полиэтилена низкого давления (ПНД) или ПВХ.
Сигнальная лента обычного или защитного типа (ЛС или ЛЗС) является элементом дополнительной защиты силовых линий от механического ущерба.
Марки бронированных кабелей для прокладки в земле
Выбор марок бронированных кабелей для прокладки в земле является оптимальным решением, позволяющим обеспечить надежность работы подземных силовых линий.
Прокладка бронированного кабеля в грунте обычно не требует дополнительных средств защиты. Изделия этого типа обладают отличной устойчивостью к механическим повреждениям, влаге, грызунам и другим внешним воздействиям. Рассмотрим наиболее популярные марки, используемые при прокладке бронированного кабеля под землей в таблице 1.
Таблица 1.
| Количество жил | 1-5 | 2-5 | 1-5 | 3.4 | 1,3,4 | 3 |
| Сечение жил, мм2 | 2,5-625 | 1,5-240 | 2,5-240 | 16-240 | 16-800 | 25-240 |
| Изоляция | ПВХ | ПВХ | СПЭ | СПЭ | бумага | бумага |
| Экран | нет | нет | нет | нет | электро-проводящая бумага | электро-проводящая бумага |
| Броня | 2 стальные ленты | 2 стальные ленты | 2 стальные ленты | круглые стальные оцинк. проволоки | 2 стальные ленты | круглые стальные оцинк. проволоки |
| Наружная оболочка | ПВХ-шланг | нет | ПВХ-шланг | ПЭТ-шланг | волокнистые материалы | волокнистые материалы |
| Напряжение, кВ | до 6 | до 1 | до 6 | до 1 | до 10 | до 10 |
| Предельная длительная температура нагрева жилы, °С | 70 | 70 | 90 | 90 | 80 | 80 |
| Особенности прокладки в земле | В грунтах с любой степенью коррозионной активности, в т.ч. с наличием блуждающих токов. Растягивающие нагрузки не допускаются. Можно прокладывать в горизонтальных и наклонных трассах | В грунтах с любой степенью коррозионной активности, в т.ч. с наличием блуждающих токов. Значительные растягивающие нагрузки не допускаются. Возможен монтаж во влажной среде. Без ограничения по уровням на кабельной трассе, в т.ч. на вертикальных участках | В грунтах с любой степенью коррозионной активности, в т.ч. с наличием блуждающих токов. Растягивающие нагрузки не допускаются. Нельзя прокладывать в пучинистых и просадочных грунтах. Без ограничения по уровням на кабельной трассе, в т.ч. на вертикальных участках | В грунтах с любой степенью коррозионной активности, в т.ч. с наличием блуждающих токов; в грунтых с высокой вероятностью деформации (оползневые, мерзлые грунты). Без ограничения по уровням на кабельной трассе, в т.ч. на вертикальных участках | В грунтах с любой степенью коррозионной активности, в т.ч. с наличием блуждающих токов. Растягивающие нагрузки не допускаются. Без ограничения по уровням на кабельной трассе, в т.ч. на вертикальных участках | В грунтах с любой степенью коррозионной активности, в т.ч. с наличием блуждающих токов; в грунтах с повышенной влажностью, насыпных, болотистых, пучинистых, мерзлых. Без ограничения по уровням на кабельной трассе, в т.ч. на вертикальных участках |
Какой кабель можно прокладывать под землей?
Довольно часто от наших клиентов поступают вопросы о возможности прокладывать ту или иную марку под землей (в траншеях). Мы отобрали наиболее частые из них, чтобы в рамках данной статьи компетентно ответить на них.
?Можно ли прокладывать кабель ВВГнг в земле?
Кабель марки ВВГнг не рекомендован для использования при прокладке подземных силовых линий без дополнительной защиты от механического воздействия. Однако, прокладка ВВГнг в ПНД-трубе в земле допустима.
?Можно ли кабель ВВГ прокладывать в земле?
Аналогично марке ВВГнг, данный кабель не имеет защитных покровов, поэтому без дополнительной защиты его прокладка в подземных траншеях не рекомендована. Допустим монтаж в трубе.
?Можно ли кабель СИП прокладывать в земле?
Данная марка относится к группе самонесущих кабелей, которые используются в процессе монтажа воздушных силовых линий. Согласно ПУЭ-6 п. 2.1.48 «Провода и кабели должны применяться лишь в тех областях, которые указаны в стандартах и технических условиях на кабели (провода)».
?Можно ли кабель КГ прокладывать в земле?
Кабель КГ предназначен для подключения подвижных механизмов. Его прокладка в земле открытым способом недопустима согласно ПУЭ-6 п. 2.1.48.
?В каких трубах прокладывают кабель в земле?
Для защиты небронированных марок, которые используются для монтажа силовых линий в земле, чаще всего применяются двустенные гофрированные трубы и технические полиэтиленовые трубы. Стальные трубы не допустимы для прокладки вне помещений (согласно ПУЭ-6 п.2.1.78)
xn----jtbncduncbo1j.xn--p1ai
Прокладка кабеля к дому
Прокладка кабеля к дому.
| Прокладка кабеля по воздуху | Прокладка кабеля под землей |
| Плюсы
| Плюсы
|
| Минусы
| Минусы
|
1. Прокладка кабеля по воздуху.
Подключение кабеля к ВЛ (воздушной линии) осуществляется на ближайшей к дому опоре. При расстоянии до опоры больше 25 метров, необходимо установить ещё одну опору на расстоянии до 15 метров от ВЛ и до 10 метров от дома.
Монтаж провода СИП:
- выбираем самую близкую к дому опору,- выбираем и отмеряем длину кабеля (учитываем запас на столбе, где монтируем эл. щит со счетчиком – требование Мосэнерго), т. е. кабель от ВЛ идет не сразу в дом, а вначале на счетчик, а уже от него – в дом,- устанавливаем новую опору, при необходимости,- монтируем крепежные кронштейны или анкера для СИП на опорах и на доме,- крепим СИП с помощью специального зажима на доме и к опоре,- натягиваем СИП с использованием ролика, - крепим щиток со счетчиком на опоре ВЛ, - подключаем к счетчику и к креплению на доме (пример на рисунке).- монтируем щит внутри дома, - вводим кабель в дом.
Способы крепления СИП:
На рис. изображено стандартное крепление для кабеля СИП. Это зажим для кабеля и петля для монтажа к стене дома или к опоре. Способы крепления на столбе:- с помощью металлического хомута (продаются готовые),- с помощью полосы – самостоятельно изготавливаете из металлической полосы (только не забудьте обезжирить, загрунтовать и покрасить) + гайка и болт,- с помощью натяжного крюка (на некоторых столбах сохранены металлические уголки с отверстиями),!!! Крюки для крепления должны быть надёжно закреплены в основной конструкции дома!
2. Прокладка кабеля под землей.
Кабель надо прокладывать, учитывая:- минимальную длину кабеля,- его защиту от механических повреждений,- расстояние от кабеля до системы канализации, дренажа (более 2 метров),- областина трассе прокладки с неблагоприятной средой: болота, вода и др.( кабель надо проложить в асбестовой трубе),- расстояние от кабеля до стволов деревьев (более 2 м), до кустарников – более 0,75 м (ПУЭ 2.3.83),- расположение трубопроводов: кабель не должен проходить под или над трубопроводом, а при параллельной прокладке, расстояние от кабеля до трубопровода должно быть от 0,25 до 2 м.
Устройство траншеи под кабель.Траншея под кабель должна быть с уклоном в сторону опоры в 5 Градусов, чтобы вода не скапливалась у фундамента дома. (СНиП 3.05.06-85)
Как сделать траншею, а затем уложить кабель:
1. Роем траншею шириной 0,3-0,4 м и глубиной: 0,7 метра для 20 кВ и 1 метр для 35-45 кВ (ПУЭ 2.3.84),2. На дно засыпаем песок (речной мытый без примесей камней, мусора и др. твердых фракций) – 0,1 м,3. Укладываем кабель,4. Засыпаем песок 0,1 м, трамбуем, проливаем водой,5. Просыпаем 0,15 м грунта (смотрите, чтобы отсутствовал строительный и другой мусор, шлак, гипс, известь) и укладываем сигнальную ленту (ПУЭ 2.3.83),6. Засыпаем всю траншею под кабель,7. Проливаем водой, готово.
ros-k.ru
Прокладка кабелей в земле в трубах: основные правила работ
Обустраивая дачный участок, хозяева должны решить множество эксплуатационных моментов, связанных с новой постройкой. Чтобы комфортно проживать в загородном доме, потребуется продумать качественные системы водопровода, канализации, а также электроэнергии. Прокладка кабелей в земле в трубах необходима для обеспечения питания осветительных приборов, обогревателей и прочей бытовой техники. Чтобы самостоятельно выполнить эту работу, необходимо изучить технологию ее проведения. Это позволит создать качественную и долговечную систему.
Общие требования к работам
Не каждого собственника участка устраивает воздушное проведение системы кабелей к дому. Все больше оборотов набирает подземный вариант прокладки силовых коммуникаций. Они входят в дом через подвал. Поэтому подобный вид работ выполняют еще на этапе закладки фундамента.
План подобной электрификации разрабатывается еще до начала строительства. Продумываются все разветвления кабеля. На этом этапе учитывается состояние грунта, тип климатической зоны и прочие моменты безопасности эксплуатации системы.
Прокладка кабелей в земле в трубах должна выполняться с учетом существующих требований и правил. При проведении подобных работ необходимо учитывать нормы СНиП и ПУЭ, а также ГОСТа. Выполняя все необходимые монтажные операции, обязательно соблюдают правила безопасности труда.
Виды материалов
Прокладка кабелей в земле в трубах (ПУЭ, СНиП четко регламентируют этот процесс) требует выбора правильных материалов. В первую очередь они должны быть безопасными. Но и стоимость их должна быть приемлемой. Сегодня существуют коммуникации, которые не нуждаются в проведении их по трубам. Это бронированные кабели. Однако их стоимость очень велика. Поэтому траншейный метод монтажа предполагает применение более дешевого кабеля в специальных трубах.
Кабель, который проходит под землей, должен иметь маркировку СИП. Эту разновидность позволяют применять все существующие нормативы. Однако его обязательно монтируют траншейным способом в трубе. Трасса может быть при этом металлической или пластиковой.
Трубы ПВХ/ПНД изготавливают из пластика. Они довольно прочные и имеют гладкую поверхность. Гофротрубу типа DKC позволяется использовать только для внутренних работ, для проведения коммуникаций под слоем штукатурки.
Преимущества метода
Прокладка кабелей в земле в трубах ПНД, металлических или металлопластиковых разновидностях имеет ряд преимуществ. Это позволяет защитить провод от неблагоприятных погодных условий, механических повреждений.
Если потребуется однажды заменить проводник, можно легко достать старый кабель и по уже существующей трассе пустить новый. Такая методика позволяет соблюсти правила пожарной безопасности. Это особенно важно в деревянных домах. Труба, предназначенная для траншейного монтажа, препятствует возникновению искры и перегрева окружающих материалов.
Преимуществом такой системы является дополнительная защита кабеля. Благодаря трубе его не повредят грызуны, микроорганизмы. Если проводник закладывается в земле без такой защиты, кроты могут его перегрызть.
Обустройство траншеи
Прокладка кабелей в земле в трубах (фото представлено далее) должна удовлетворять ряду обязательных требований. Глубина залегания проводника в грунте должна быть не менее 70 см. Этот показатель варьируется в зависимости от климатической зоны.
Нельзя проводить трассу под фундаментом. От него кабель должен проходить не ближе, чем в 60 см. Ширина канавы выбирается в соответствии с количеством проводников, проходящих по трассе. Они должны быть расположены не ближе, чем в 10 см друг от друга.
Траншея засыпается песком и утрамбовывается на уровень 15 см. Перед обустройством трассы необходимо рассмотреть план участка. Не допускается, чтобы трубы с электрическими проводниками проходили ближе, чем в 1 м от газовых или в 2 м от водопроводных коммуникаций.
Если для укрепления линии передач используется кирпич (при значительном проседании грунта), он не должен быть пустотелым. Поверх трассы необходимо проложить ленту с надписью о прохождении здесь силового кабеля. Далее снова засыпается слой песка и земли с горкой.
Особенности закладки в пластиковых трубах
Прокладка кабелей в земле в трубах ПНД имеет ряд особенностей. Их необходимо изучить перед проведением работ. Первоначально надо выполнить чертеж трассы. Крепеж трубы необходимо производить через каждые 60-80 см. Для этого применяют специальные скобы или клипсы.
Чтобы протащить кабель по трубе, используют специальные протяжки или металлическую проволоку. Все элементы трассы соединяют при помощи специального паяльника. Кабель внутри соединять следует при помощи особых муфт.
Если трасса имеет вертикальное расположение, ее делают с уклоном. Так в ней не будет собираться конденсат.
Особенности закладки в металлических трубах
Если тянуть проводник требуется в деревянное здание, баню, то лучше отдать предпочтение металлической трубе. Это крепкое изделие. Оно может быть оцинкованным или железным.
Следует отметить, что прокладка кабелей в земле в трубах DKC недопустима. Их используют сугубо для прокладки кабеля внутри помещений. Чтобы соединить металлические элементы трассы, можно применять сварку либо резьбовые фитинги.
При обустройстве такой системы необходимо выполнить заземление. Уклон должен выполняться в сторону распределительной коробки. Трубы и стыки требуется окрасить во избежание образования коррозии. Для внутренних работ такие конструкции лучше не использовать. При заливке пола бетоном окрашенные поверхности будут с ним плохо сцепляться.
Правила подключения
Прокладка кабеля в трубах в земле, нормы которой регламентируют ПУЭ и ГОСТ, должна выполняться ответственно. Не допускается выполнять соединения в трубах. Это делают только в самых крайних случаях и при этом используют специальные муфты.
Лучше, чтобы такие монтажные соединения были выполнены в распределительных коробках. Этого требуют правила техники безопасности.
Трассу нельзя изгибать под углом более 90 градусов. Иначе замену старого проводника будет выполнить невозможно. Места соединения труб необходимо дополнительно уплотнять. Ввод должен быть герметичным.
Сечение провода необходимо выбирать в соответствии с нагрузкой системы. Лучше отдать предпочтение кабелю из меди. Алюминиевые проводники применимы только для внутренних работ.
Несколько рекомендаций специалистов
Правильная прокладка кабелей в земле в трубах выполняется самостоятельно довольно просто. Однако следует при этом учесть советы экспертов. Они рекомендуют применять трассу, ширина которой будет больше в 3 раза, чем сам проводник.
Если зимы в этой климатической зоне очень суровые, грунт может промерзнуть более чем на 70 см. Чтобы трубы не деформировались, следует их тщательно закрепить. Но лучше, если трасса будет проходить еще глубже.
При разработке плана необходимо избегать закладки траншеи под участками автостоянки, детской площадкой или садовыми дорожками.
Ознакомившись с такой технологией, как прокладка кабелей в земле в трубах, можно выполнить эту работу самостоятельно. Соблюдая все требования строительных норм и правила техники безопасности, можно создать качественную, долговечную трассу. Ее эксплуатация будет безопасной.
fb.ru
Прокладка сип под землей — ButyLife
Комментарии пользователей nik begemot 13.03.2018 - 23:18Чтоб тебя в стоять гробу похоронили.
Max Ivanov 15.03.2018 - 08:33АВТОР, ТЫ БЛЯДЬ ТАПОК СУКА ПОВОРАЧИВАЙ ИНОГДА ЕБНВРТ
Tony Antonios 18.03.2018 - 08:26Хуйня, не видели вы, как огонь из под земли херачит, грунт плавится.
avismax 19.03.2018 - 22:06Задолбали вертикалками, ну нельзя так. Мозги включайте, ребята.
ЙАР 22.03.2018 - 06:17Отличное видео!Убивать надо за такие ролики!
Анатолий Михайлов 24.03.2018 - 20:11Надо бежать,а не снимать!
Анатолий Михайлов 27.03.2018 - 12:31Но если не бежать,то может и дадут орден Сутулова,но посмертно!
SANTEI 29.03.2018 - 01:34бежать? это для слабаков!
Олег Чемпионов 26.03.2018 - 00:23Крот курит
Александр Ковалёв 28.03.2018 - 01:56Ну Петя!
pprog15.com
правила и теория, практика и реальность
Энергетики считают: подготовка проекта производства работ согласно ПУЭ. Хотя шестая редакция сильно обрезана седьмой, сегодня полистаем старую, освежим память. ПУЭ вызывают глубокое уважение мастеров, правила прописывают азбучные истины. Большая часть текста (если не вся) согласована с соответствующими государственными инстанциями. Прокладка кабеля в траншее выполняется организацией, способной предоставить квалифицированный персонал, владеющей лицензией.
Прокладываем кабель правильно
Настоятельно рекомендовали бы изучить ПУЭ 6, выясняя, как правильно ведется прокладка силового кабеля в траншее. Документ лишен законодательной поддержки (хотя согласование было проведено, за давностью ковылем поросло), многие организации руководствуются выверенными строками поныне. Чтение документа усложнено непростой структурой. Основные замечания, которые нужно знать новичку, чтобы не запутаться:
- Под защищенными и незащищенными кабелями понимается унифицированное определение раскрывающими стандартами. Выпущен отдельный ГОСТ на СИП. Бумага изделия называет защищенными. Значит, монтаж СИП проводится по указанной ПУЭ схеме для защищенных кабелей.
- Описание работы с электрическими линиями начинается разделом (выброшенным ПУЭ 7 новой редакции), ссылки приведены на другие части правил.
- Разбор начинают общими положениями, согласно увеличению вольтажа. Не строго. Например, для всех линий указываются специфические положения, полные правила, сдобренные оговорками, приводятся далее. В разделе про вольтаж до 220 кВ обсуждается укладка в землю прочих кабелей. Нарушение хронологического порядка запутает новичка, нужно внимательно прочесть раздел 2, выбрать относящееся к имеющейся линии (у большинства обывателей 220 или 380 вольт, до 1 кВ). Россия внедрила 230 вольт после утверждения текста ПУЭ 6. Обзор портала ВашТехник приводит дословно сведения.

Кабельная траншея
Прочитав ПУЭ 6, скажем следующее, касающееся укладки кабеля в траншее…
Глубина заложения
Кабели закладываются на глубину 0,7 метров, факт изрядно демонстрируется видео Ютуб. Параллельно умалчивается нюанс: дистанция задана для кабелей диапазона до 35 кВ. Далее глубина вырастает до метра. Но не просто относительно почвы, а планировочной метки. В меру нашего разумения — некий знак, оставленный геодезистами на плане, перенесенный на местность. Почва бывает неровной, приходится находить некий средний уровень. Глубина достигает 1,5 метров, начиная напряжением 110 кВ. Ролики Ютуб оценивайте, внося нотку критики.
Под пахотой кабель 6 — 10 кВ кладется поглубже – закапывается на 1 метр. Имеются некоторые другие исключения из правила.
Яма под кабель
Яма выкапывается легким уклоном стенок наружу. Не столь важна ширина, сколько выполнение требований к закладке. Совместно кладут не более шести кабелей напряжением до 35 кВ. Под оставшиеся роем еще одну траншею, и так далее. Расстояние между группами превышает 0,5 метра.
Траншея заведомо выкапывается глубже сантиметров на 10. По правилам под кабель насыпают дренажный песок, утрамбовывают. Отсутствует специальная техника — умельцы применяют собственные ноги. Избранный способ определен фронтом работ.
Траншея под прокладку кабеля оборудуется не ближе 0,6 метра к фундаменту здания, любому другому подземному инженерному сооружению. Любопытно, ни слова не говорится об отмостке (дорожка по периметру дома). Нормируется расстояние до стволов деревьев – не менее двух метров. Косвенно указывает: район трассы зеленых насаждений лишен (собственно, промышленные линии специально обозначаются, каждый видел таблички: осторожно, кабель!). Лес выкорчевывают. Указанное расстояние уменьшают при прокладке на территории парков, лесополос (согласуют проект).
Закладка стального кабеля
Дальнейшее определено родом кабеля. Имеющие стальную броню засыпаются очищенной (лишенной строительного мусора землей). 25 см выше кабеля укладывают ленту изоляционного материала, на которой написано: проходит высоковольтная линия. ПУЭ категорически расходится изложением с некоторыми практиками, которые этим и ограничиваются.
По нормам полагается защитить кабели сверху, пользуясь помощью специальных керамических (для линий выше 35 кВ — железобетонных) плит, кирпича (для линий выше 35 кВ недопустимо) из того же материала толщиной не менее 5 см. Рядовой превышает указанные габариты. Кирпич кладут поперек линии, плитка — как указано инструкцией производителя. Вертикальное расстояние до кабеля составляет 15 см. Для опоры по бокам вдоль линии выкладываются два ряда кирпича (по одному слева-справа), поверх кладут поперечный.
Обратите внимание, выше кабеля земля должна быть чистой. Прорабы, тщась найти грунт, присыпают песком. Поверх кирпичей по-прежнему лента, предупреждающая надписью кротов, специальные плиты содержат таковую на поверхности. Дополнительной сигнализации не требуется. Лента сигнальная для прокладки кабеля в траншее укладывается чисто теоретически.
Укладка броневого кабеля
Броневой кабель, согласно написанному, укладывается в землю, прочие марки нуждаются в защите. Можно использовать гофр (для силовых линий черный, красный, связные – синие), трубы ПНД. Первый применяется в большинстве случаев, при проходе дорог, когда проводится горизонтальное бурение, чаще используют полиэтилен. Намного снижает трение, упрощает процесс закладки кабеля.

Защитный гофр
Кирпичная защита
При закладке глубиной 1 — 1,2 метра допускается обходиться без защиты плитами сетей ниже 20 кВ (в том числе 220/380 В). Допускается класть кирпич вдоль, если кабель один, ширина траншеи не превышает 25 см. Поможет сэкономить примерно в два раза стоимость материала. Запрещается применение силикатного, пустотелого кирпича. Кабели напряжением ниже 1 кВ допускается лишать защиты.
Одно исключение, которое можно использовать для экономии. Трасса сформирована 5 кабелями до 20 кВ (не питающих потребителей I категории). По правилам нужно защитить плитами, кирпичом. И здесь умные головы придумали делить на три траншеи (оставляя положенные полметра), куда кабель кладут по схеме 2х2х1. Прокладка кабеля в траншее указанным методом ПУЭ относится в разряд исключений. Можно ограничиться укладкой предупредительной ленты. Кирпич, плиты составляют чистую экономию. Увеличивается объем земляных работ? В ППР на прокладку кабеля в траншее предусмотрим применение техники, оставляющей широкий шлейф (свыше полутора метров). Дно подсыпем песком, установим кабели согласно схеме, добавим чистой земли, уложим предупреждающую полосу.
Сигнальные ленты
Технологическая карта работ исключает применение сигнальных лент в районе пересечения кабелей с инженерными коммуникациями (водопровод, канализация) на 2 метра в каждую сторону, выше муфт. Аналогичные требования, только с увеличением дистанции до 5 метров, существуют для подходов к распределительным щитам и подстанциям. Сигнальная лента прокладывается с запасом минимум по 5 см по бокам от осей кабелей, соседние ленты (при наличии широкой трассы) протягиваются внахлест на 5 см.

Предупреждающая лента высоковольтной трассы
Технология прокладки кабеля траншеей
Предусматривается ограничения на горизонтальное расстояние меж линиями: 10 см – ниже 10 кВ; 25 см – 10-35 кВ; 50 см – между кабелями, эксплуатируемыми организациями, и выше 110 кВ. Однако замалчивается вертикальное расстояние (авторы не нашли). Некоторые организации умело используют пробел, монтируя парно связками. В каждой кабели располагаются по вертикали. Позволяет значительно сократить ширину углубления, избежав использования кирпичей, защищающих трассы. Рытье траншеи для прокладки кабеля упрощается, финансовые расходы снижаются.
Параллельное ведение кабеля
Допускается параллельная прокладка кабеля связи в траншее, силовых линий, инженерных коммуникаций. Расстояние до последних не менее одного метра (до газопроводов, теплопроводов — 2 метра). Меж кабелями выдерживается дистанция, согласно указаниям, приведенным выше. Расстояние до инженерных коммуникаций можно сократить линий до 35 кВ вдвое, применяя укладку в защищенном варианте (внутри трубы ПНД), дальность вовсе получаем смехотворную – 25 см. Приводятся некоторые другие исключения ПУЭ.
Места пересечения кабелей
В местах пересечения кабелей вертикальное расстояние не менее 0,5 метра. Параллельное следование замалчивается! На перекрестке величину зазора можно снизить, применяя бетонные плиты, трубы с запасом по одному метру в каждую сторону. Кабель связи идет выше силовых линий.
Расстояние до заземлителей
Нормируется расстояние до заземлителей высоковольтных линий (врывается под столбами): до 1 кВ – 1 метр; 1-35 кВ – 5 метров; выше 110 кВ – 10 метров.

Кабельная траншея
Практика укладки кабеля
Расписали нормы, теперь читателям наверняка интересно, как методики реализуются практически. Глубина траншеи прокладки кабеля выдерживается частниками ориентировочно, инструментом послужит лопата. Предприятия используют тракторы, снабженные бороной (фрезой), бульдозеры (снятие широкого слоя). Кабель немного змеится, идет легкой волной. Помогает компенсировать температурные изменения по временам года. Стараются положить сразу большой отрез:
- Вдоль трассы монтируется система роликов, повторяющая изгибы криворукого машиниста бульдозера.
- Под шоссе, оврагами ведется горизонтальное бурение с выходом кабельного канала на ту сторону. Внутрь прокладываются трубы ПНД. Некоторые типы кабеля можно непосредственно кидать на дно (сетчатый экран).
- Иногда используются бетонные блоки, служащие каналами.
Типовой проект показывает последовательность действий. Допустим, прокладка кабеля в траншее внутрь трубы ведется протяжкой троса лебедкой. Натяжение не превышает 30 Н/кв. мм алюминиевых и 50 Н/кв. мм медных жил. Берется сечение чистого металла, площадь оплетки отбрасывают. Оценивается длина протягиваемого лебедкой отрезка кабеля, вычисляются, согласно коэффициентам, силы трения, нагрузка. Типичные примеры цифр:
- Коэффициент трения при движении по роликам – 0,2-0,3
- При протягивании в бетонный короб – 0,4-0,6.
- При протаскивании внутрь ПНД трубы определяется методикой (снижая коэффициент, используют смазку, масло, воду). Колеблется в пределах 0,1 — 0,25.
Нагрузка трех сплетенных кабелей высчитывается соотношением, будто тянется один. Никто неспособен гарантировать, что длина элементов в точности одинакова. На практике и достичь сложно. Радиус скругления одиночного кабеля должен быть выше 15 диаметров внешней изоляции. Для трехжильных – 12. Недостаточно выучить типы траншей прокладки кабеля, прочитать ПУЭ. Потребуется изучить многие нормы, стандарты, правила, предписания.
Прокладка взаиморезервируемых кабелей траншеей по ПУЭ вроде не запрещается. Но вводная части говорит: линии в одном рукаве монтировать запрещено. При форс-мажорном случае может наступить одновременный выход из строя той и другой линии (расплавит дугой). Первопричина, по которой совместная укладка кабелей не приветствуется.
Заканчиваем обзор, надеемся, объяснили, как нужно пользоваться документами. Целиком случаи жизни советами не снабдишь. Примеры взяты практические, проекты реализованы, сданы в эксплуатацию. Слишком сильно лазейками пользоваться в законе не следует. Вдруг, изменятся!
vashtehnik.ru











